Alpine Road E

Stanford Rental Homes image

Alpine Road E

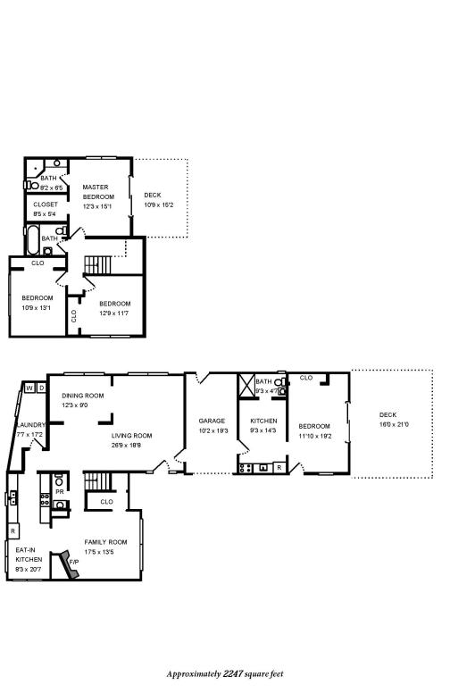
Menlo Park 94025 | Unavailable | Off Campus | 4 beds | 3 baths | 2247 sq. ft. |

Large contemporary two story single family home conveniently located off campus. This home has 1 bedroom, 1 bath attached in-law suit and nice back yard ideal for outdoor entertaining.

Contact Us

Stanford Rental Homes image